5683:中古戸建 三鷹駅 中古戸建
| 価格 | 3,280万円 |
|---|---|
| 所在地 | 三鷹市深大寺3 |
| 交通 | 中央線 三鷹駅 バス18分 停歩5分 |
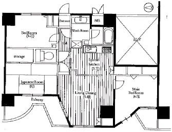
| 間取 | 2SDK |
| 土地面積 | 76.19m²(23.04坪) |
| 建物面積 | 60.72m²(18.36坪) |
| 私道面積 | - |
| 築年月 | 2000/07 |
| 学区 |
| 建物構造 | 木造 |
|---|---|
| 階建 | 地上2階建 |
| 建ぺい率 | 40% |
| 容積率 | 80% |
| 地目 | 宅地 |
| 用途地域 | 第一種低層住居専用地域 |
| 土地権利 | 所有権 |
| 取引態様 | 仲介 |
| 引渡時期 | 相談 |
| セットバック | |
|---|---|
| 接道 | |
| 諸費用 | |
| 他法条例 | |
| 建築確認番号 |
特色
1234567890
周辺地図
位置情報に関するご注意:現在位置情報は精査中の為、正確ではない場合があります。あくまで参考程度の情報となります。
























